Söderhagsvägen 29B
Stor villa med pool ett stenkast från Drevviken!
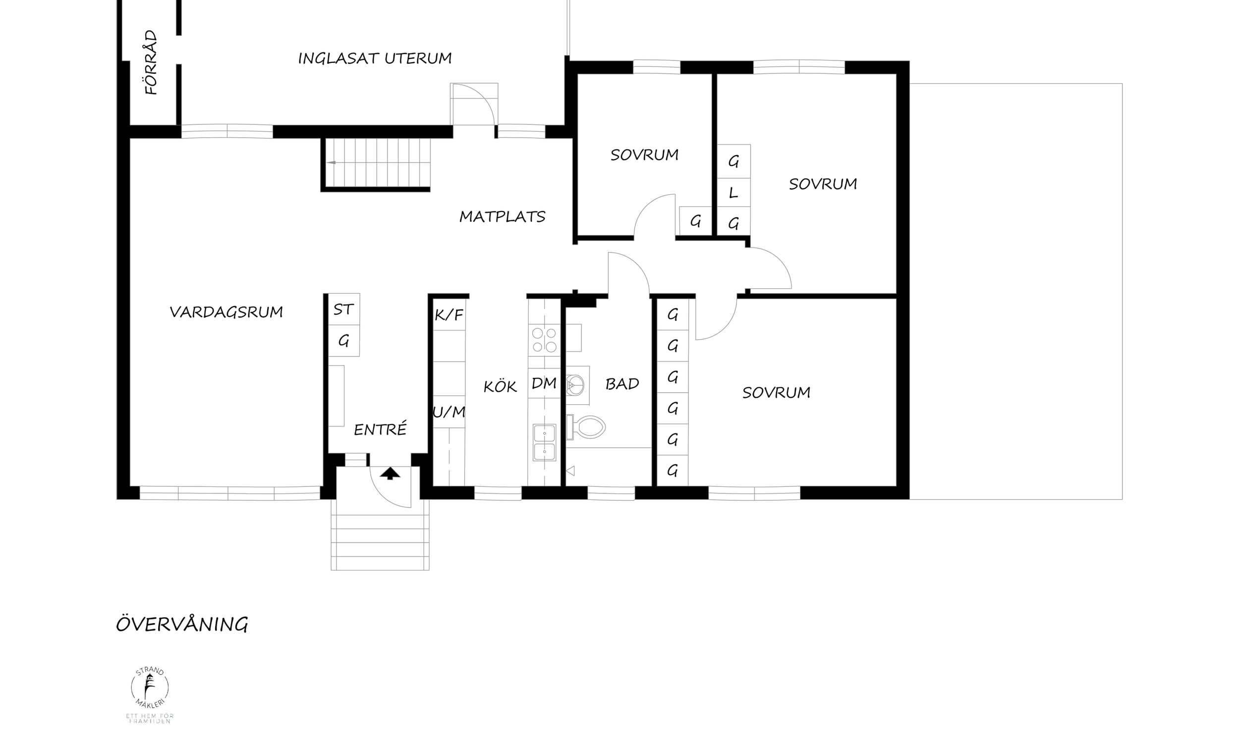
- Beskrivning- Pool - Spabad - Inglasat uterum - Närhet till bad och natur - Garage - Gäststuga Varmt välkomna till Söderhagsvägen 29B i populära Söderhagen i Vega med närhet till natur, bad och city! Huset disponeras genom tre sovrum, två badrum, ljust vardagsrum och modernt kök. Här finns även tv-rum, tvättstuga och inbyggt garage. Det inglasade uterummet förlänger säsongen och på tomten finns en praktisk kontors-/gäststuga. Ett boende som rymmer både vardagsliv och umgänge. Söderhagen i Vega är ett populärt och familjevänligt område som lockar med närhet till både natur och bekvämligheter. Här bor du i en trygg och trivsam miljö med skogspromenader, lekplatser och grönområden runt hörnet – perfekt för barnfamiljen eller för dig som vill ha lugn och ro i vardagen. Samtidigt har du nära till allt som förenklar livet. Skolor, förskolor och service finns inom bekvämt avstånd och för den som pendlar ligger både pendeltågstation och väg 73 lättillgängligt, vilket gör resan in till Stockholm enkel och smidig. Buss till Gullmarsplan ligger ett stenkast från huset och badplatsen är det badrocksavstånd till!
- FaktaTillträdeEnligt överenskommelseFastighet
sbeteckning HANINGE SÖDERHAGEN 1:65ObjektstypSmåhusTypkodSmåhusenhet, bebyggdAdressSöderhagsvägen 29BPostnummer136 49PostortVegaDistriktÖsterhaningeOmrådeVegaBoarea enligtLantmäterietBoarea101 kvm + 101 kvmTomtareal/mark913 kvmTomtareal enligtLantmäterietTotalarea913 kvmAntal rum6Antal sovrum3Max antal sovrum4 - ByggnadStandardpoäng34Byggår1975GrundPlatta på markTakBetongpannorFasadTegelstensfasadFönster2+1-glas isolerglas, 2-glasUtvändiga plåtarbetenPlåtStommeTräBjälklagTrä
Byggnadskommentar
Nätverksuttag och näverkssladdar som är framdragna fungerar inte utan en switch på vinden och i källaren vid ingående nätverk, detta medföljer inte vid försäljning.VattenKommunalt vatten året omAvloppKommunalt avloppUppvärmningVärmepump luft-luftVärmeanläggningÅlder:1+3 år, radiatorer är äldreMärke:PanasonicSkick:BraVentilationMekanisk från & tilluft med återvinningInspektion ventilationMåndag 14 nov 2022ElkablarLedningar ej byttaJordningDelvis jordatHuvudsäkring25 AÖvriga byggnader
Friggebod/kontor och bastu isolerad
TV/Internet
Fiber
Utförda renoveringar
Kök renoverat 2015, ny diskmaskin 2025 Badrum totalrenoverat 2016 Stora sovrummet renoverat 2016 Tvättmaskin och torktumlare ca 2017 Luftvärmepump vardagsrum installerat 2022 Ventilation av FTX system genomgånget och inmätt i hela huset 2023 Luftvärmepump, garage, tvättstuga, stora sovrummet och gillestuga installerat 2024 Luftvarmvattenberedare installerat 2024
Utomhus Ytterhörn syd/väst vid hus och garage uppgrävt och isolerats om med Isodrän 2017 Pool byggt 2017, Poolvärmepump 2023 Spabad 2017 Mur, trappa framsida ombyggd 2019 Avvattning från stuprör bytt 2024 Uterum ombyggt 2025
- TaxeringTaxeringsår2024Taxeringsvärdet ärFastställtVärderingsår1975Taxeringsvärde byggnad2 551 000 krTaxeringsvärde mark2 062 000 krTaxeringsvärde totalt4 613 000 kr
- KostnaderPersoner i hushållet4Elkostnad2 712 kr/månadHushållsel1 671 kr/månadSotning22 kr/månadVatten och avlopp836 kr/månadRenhållning273 kr/månadHemförsäkring637 kr/månadSumma driftskostnader6 150 kr/månadFastighetsskatt10 074 kr/år
Beskrivning av kostnader
Pool uppvärmd till 29 grader under 4 sommarmånader, spabad uppvärmt till 40 grader året om.
Årlig elförbrukning29000 kWh/årLevnadskostnader
Välkommen att kontakta ansvarig fastighetsmäklare om du vill ha hjälp med att upprätta en boendekostnadskalkyl.
- Pantsättningar & Inteckningar4st inteckningar på totalt 4 197 000 kr
- EnergideklarationUtfördesTisdag 23 sep 2025Energiprestanda82 kWh/m2StatusEnergideklaration är utfördEnergiklassE
- Rättigheter & Belastningar
Planer och bestämmelser
Söderhagen, Stadsplan (Beslutsdatum: 1983-03-24, Senast ändrad: 2023-07-31)
Planer och bestämmelser
Uthagen(1-23), Tomtindelning (Beslutsdatum: 1986-03-21, Senast ändrad: 2023-06-28)

































